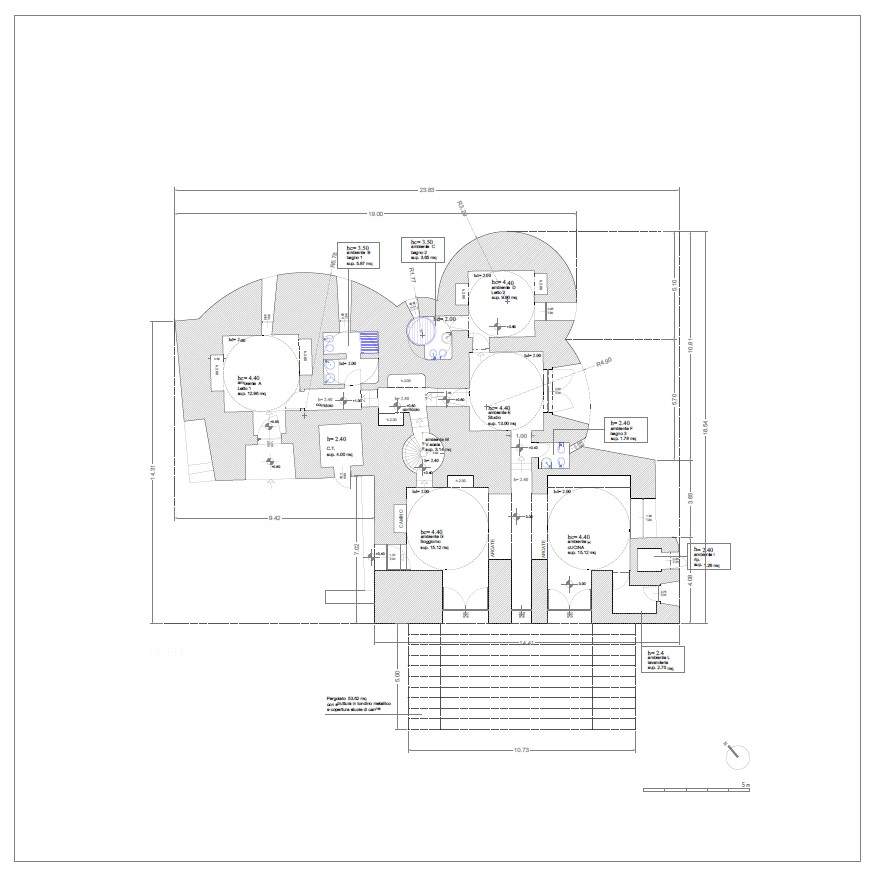
AMPLIAMENTO RESTAURO E NUOVA EDIFICAZIONE | Figazzano

AMPLIAMENTO RESTAURO E NUOVA EDIFICAZIONE | Figazzano

2017

Stato:
Eseguito

Data:
2014-2017

Indirizzo:
c.d Grotte da Figazzano Ostuni (BR)

Programma:
Progetto di restauro , ampliamento e nuova edificazione a trulli con annesso biolago  cd. Grotte di Figazzano

Superficie lotto di intervento:
12217,52 mq

Superficie coperta di progetto:
454.21 mq