CASBAH | Murge 68

CASBAH | Murge 68

2021

Unità residenziale plurifamiliare

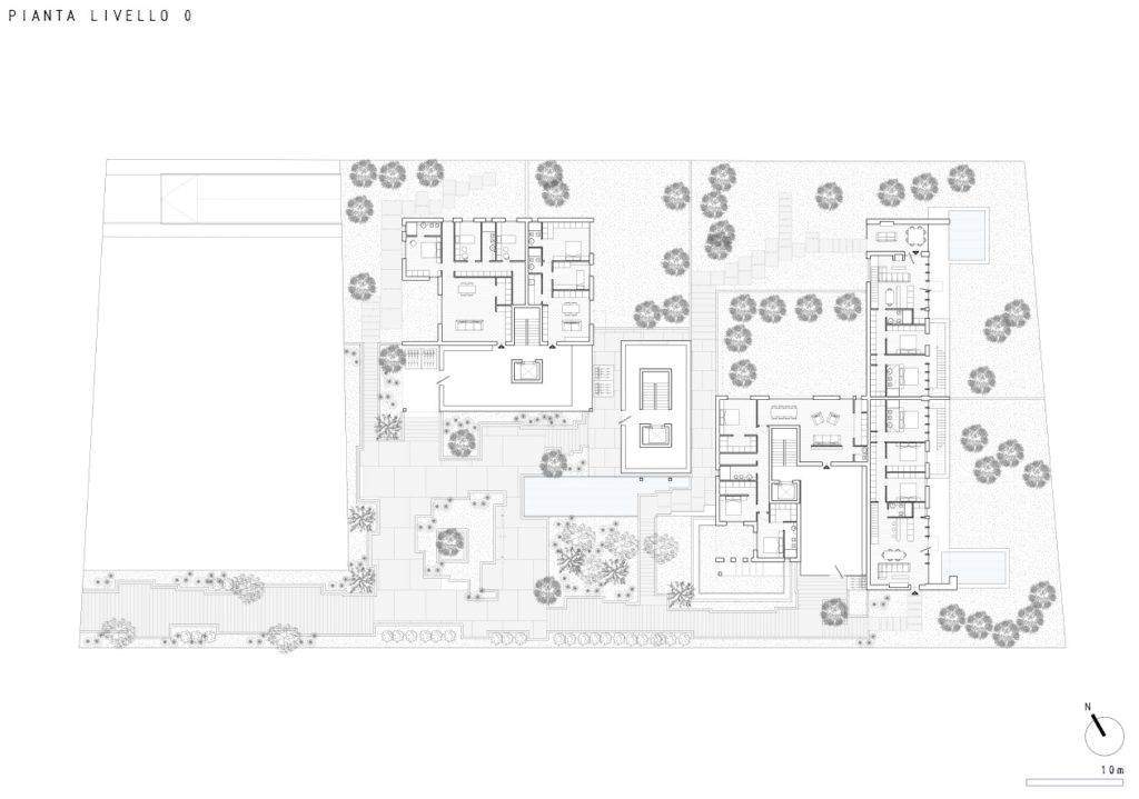
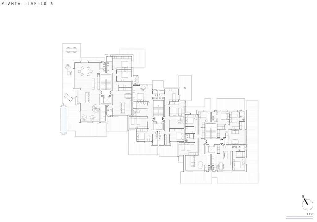
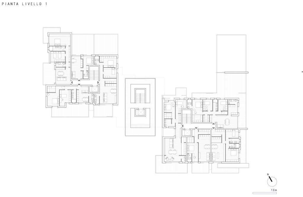
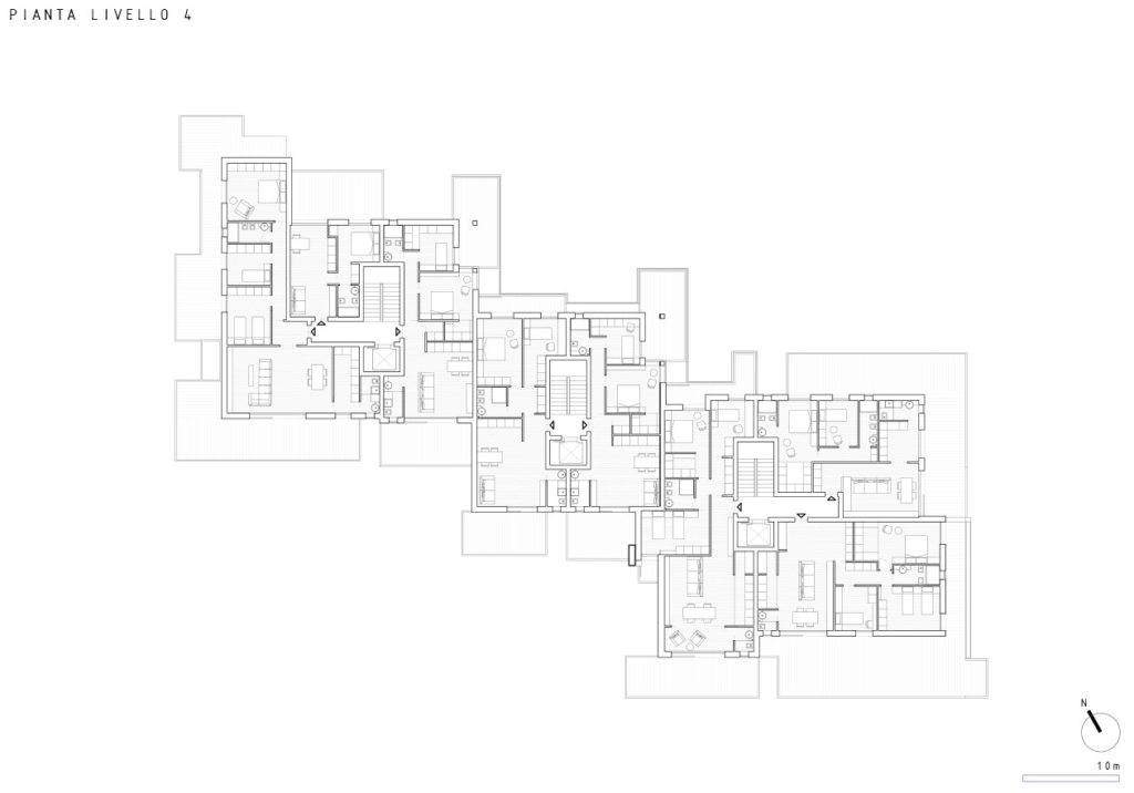
Il complesso residenziale è strutturato su sette livelli e contenente 54 delle 59 unità abitative , al piano terra sono disposte 5 unità indipendenti “ville” con annessi aree a verde privato .
Il progetto nasce come elemento di cucitura del modello architettonico Murattiano fatto a scacchiera e quello di Poggiofranco creato dall’esplosione verso sud est della maglia urbana.
L’involucro è un aggregato volumetrico piu’ rigido e regolare nella parte nord est ( protetta dai venti dominanti da una doppia pelle ) per rivolta al quartiere Murattiano per poi esplodere nella parte sud est con la presenza di grandi superfici terrazzate.
Le aree destinate alla distribuzione a piano terra sono progettate come un parco cittadino con aree a verde che hanno un’incidenza del 74% dell’intera superfice , la presenza di vasche e giochi d’acqua contribuisco alla mitigazione del microclima circostante cosi come pure il “vuoto” posto al centro dell’intero complesso residenziale contribuirà alla corretta ventilazione e distribuzione del clima dell’intero complesso.
La matrice progettuale adottata tiene in considerazione ed elabora elementi fondamentali quali il Contesto Urbano Materiali , Orientamento, Soleggiamento
Questo complesso edilizio è progettato con l’utilizzo integrato della progettazione Olografica in scala 1:1 , primo passo “visionario” verso un nuovo modo ed approccio progettuale tra committenza, progettista e contesto urbano.

Stato:
In corso d’opera

Data:
2021

Indirizzo:
via Delle Murge, Bari |BA|

Programma:
Edificio residenziale, 8 livelli, due livelli interrati a parcheggio, 59 unità abitative

Superficie lotto di intervento:
4078,55 mq

Superficie coperta di progetto:
1220,50 mq

Altezza massima:
25 m

Volume di progetto:
16420,08 mc