DUO | Calia 22

DUO | Calia 22

2021

Unità residenziale plurifamiliare

Situato nel Comune di Bitonto all’incrocio tra via Ancona e via Sulmone Calia, la costruzione di un’unità residenziale plurifamiliare.
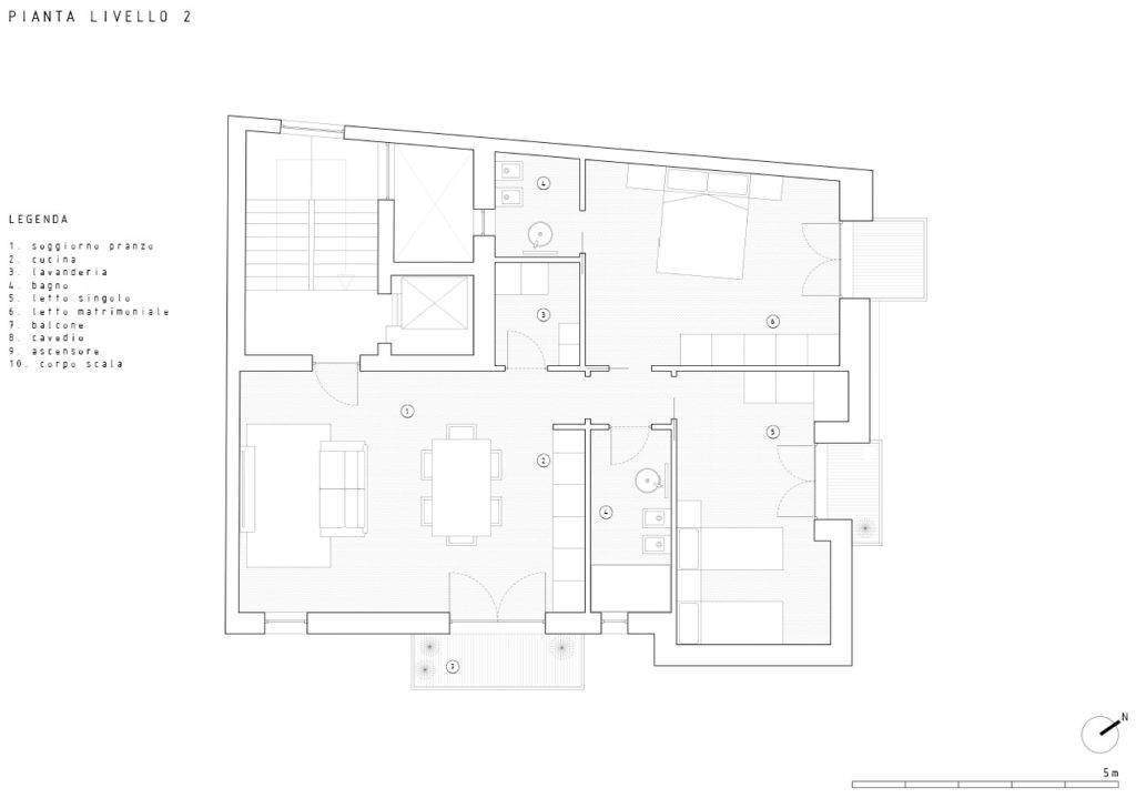
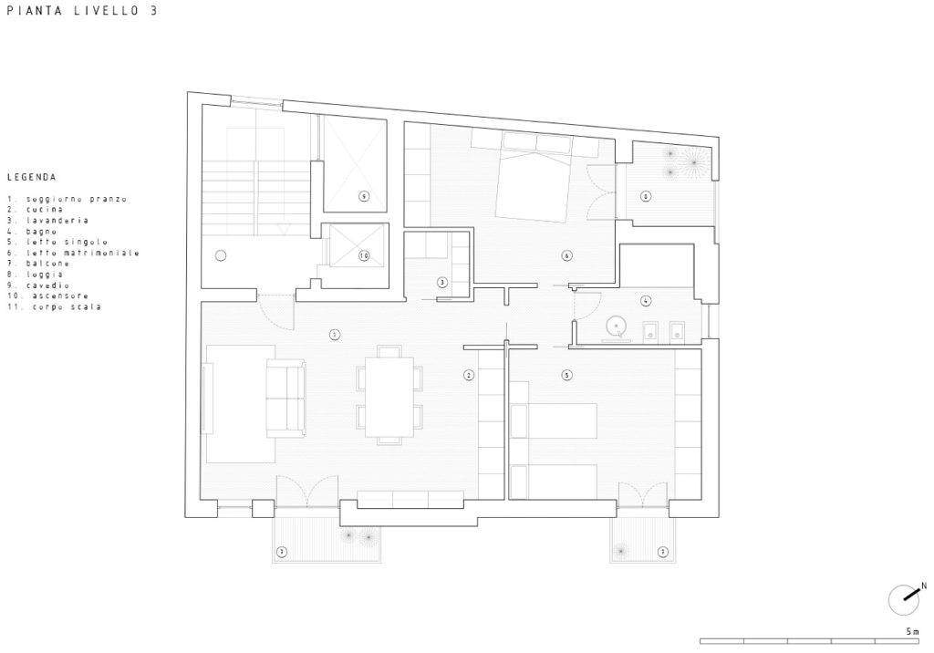
L’edificio, strutturato su quattro livelli, dispone di tre unità abitative con area parcheggio a piano terra ed ulteriori spazi adibiti a deposito all’interno del piano interrato.
L’architettura presenta nei due prospetti una trasposizione in chiave moderna del principio delle superfetazioni che caratterizza le costruzioni all’interno dei centri storici pugliesi. Scomponendo e sovrapponendo i diversi volumi, vengono generate diverse prospettive all’interno del contesto urbano. Tale conformazione rievoca infatti quelle che sono le geometrie della kasbah e delle storiche architetture arabe.
La scelta dei materiali in facciata è basata sulla volontà di ottenere un effetto bicromatico partendo dalla contrapposizione del colore panna e del colore grigio scuro antracite sulle superfici in gres lucido. Le stesse superfici presentano tagli verticali e orizzontali che ripropongono i ricorsi delle orditure e la trama delle facciate in pietra a vista nel centro storico bitontino, contraddistinto dall’utilizzo di una pietra locale bianca, le chianche, ed una pietra nera sulle superfici carrabili.

Stato:
Eseguito

Data:
2020 – 2021

Indirizzo:
angolo via Ancona – via Sulmone Calia, Bitonto |BA|

Programma:
Edificio residenziale, quattro livelli, area parcheggio al piano terra, 4 unità abitative, cantinole e depositi al piano interrato

Superficie lotto di intervento:
117,33 mq

Superficie coperta di progetto:
117,33 mq

Altezza massima:
18,10 m

Volume di progetto:
787,15 mc