FORTEZZA URBANA | Croce 24

FORTEZZA URBANA | Croce 24

2006

Unità residenziale

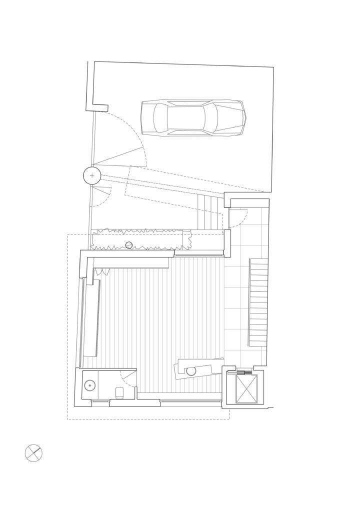
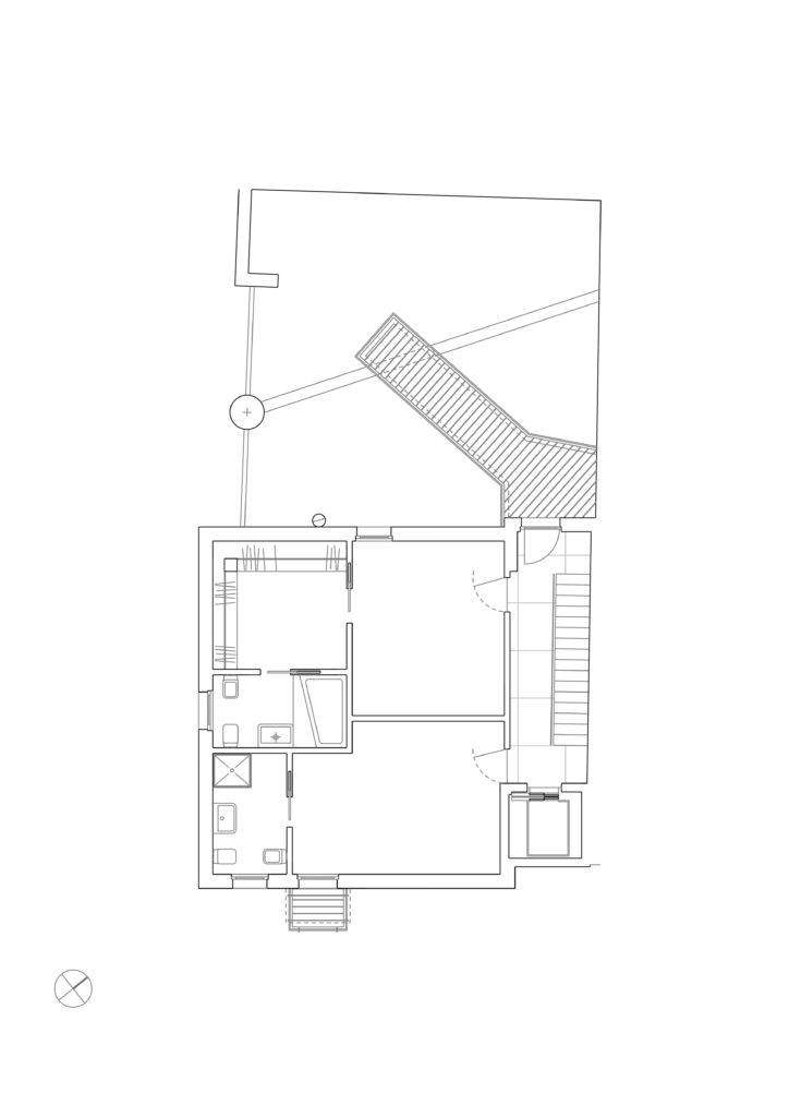
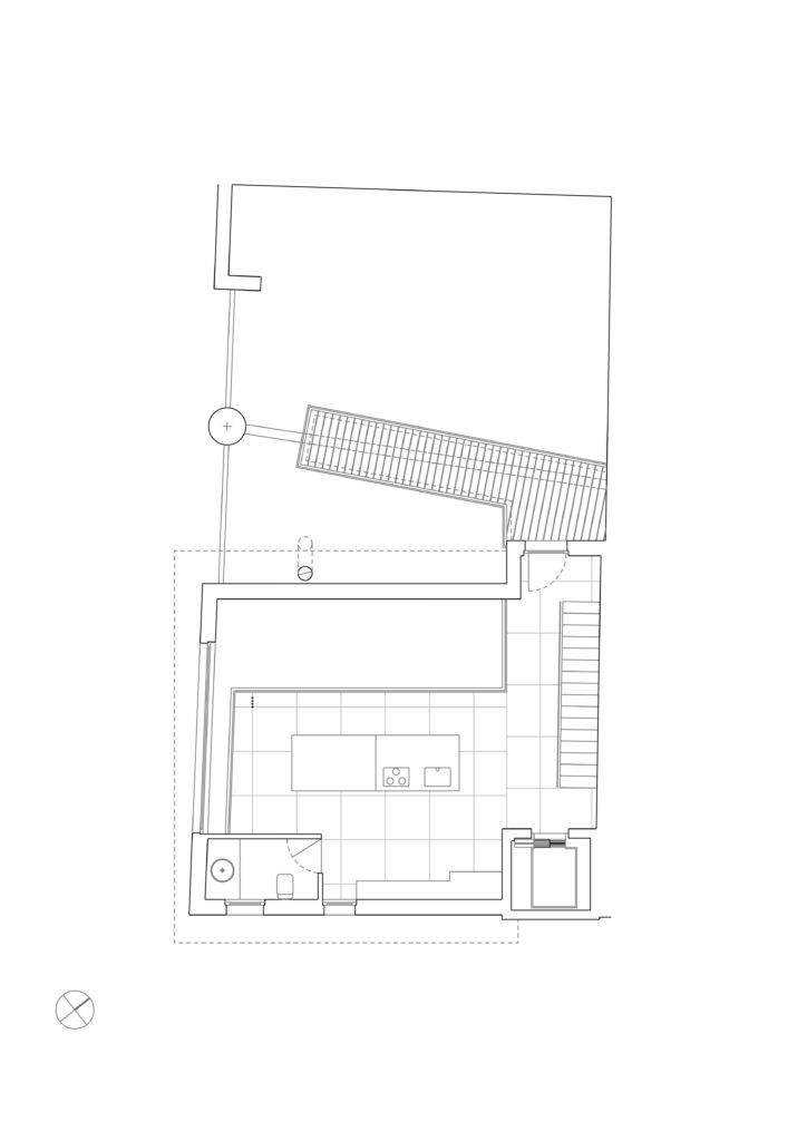
Una corte interna e passerelle simili a ponti levatoi rendono riconoscibile un edificio della periferia barese
L’edificio si inserisce in un contesto semiperiferico di scarsa qualità architettonica e poco riconoscibile rispetto al tessuto circostante .
Stimolato da un esigenza di identificabilità il progetto intende realizzare una struttura di forte contrasto rispetto all’ambiente , imponendo linee marcate e spigoli accentuati per rimarcare lo spazio interno e quasi isolarlo da quell’esterno troppo anonimo, l’unica apertura importante sulla facciata di sud-ovest è una grande vetrata con micro-serramenti oscuranti che permettono di vedere chiaramente l’esterno ma non viceversa.

Stato:
Eseguito

Data:
2002 – 2006

Indirizzo:
via B.Croce angolo via Martucci Zecca, Bitonto |BA|

Programma:
Edificio residenziale, quattro livelli, 1 unità abitative, spa al piano interrato

Superficie lotto di intervento:
140 mq

Superficie coperta di progetto:
128 mq

Altezza massima:
11,80 m

Volume di progetto:
707 mc