ONDA | La Notte

ONDA | La Notte

2018

CENTRO DIREZIONALE COMMERCIALE

A pochi passi dal porto di Bisceglie, la costruzione di un centro direzionale commerciale.
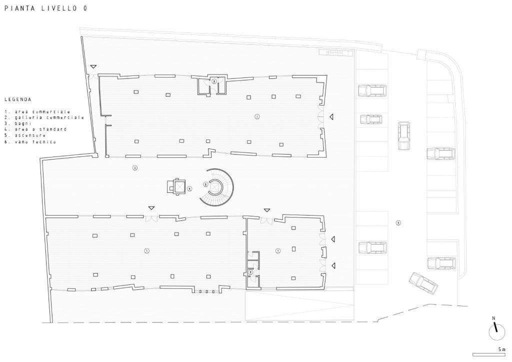
Come richiesto dal piano particolareggiato, l’impianto si costituisce a partire da due blocchi separati ai quali viene successivamente aggiunto un nuovo collegamento orizzontale, garantendo una migliore distribuzione e accessibilità ai diversi ambienti.
Considerato il contesto costiero e la vocazione delle inerenti attività portuali, la principale matrice progettuale dell’architettura sono le linee curve, ispirate al moto ondoso dell’acqua. Tali curve si traducono in una scansione delle facciate secondo un sistema di concavità e convessità, alle quali si contrappongono elementi aggettanti quali balconi e terrazze.
Sul fronte principale un ampio vuoto disposto perpendicolarmente al mare definisce lo spazio pubblico della galleria commerciale, a sua volta coperto da una struttura in legno e vetro. In questo ambiente si attestano le varie attività commerciali presenti all’interno di un alto basamento che corre lungo il perimetro dell’edificio. Determinante la presenza di una rampa centrale: ben visibile dal fronte sul porto, definisce quale l’ordine nella distribuzione e nella gerarchia spaziale.
Come materiali da costruzione vengono utilizzati una pietra arenaria ed una pietra calcarea locale, suddividendo orizzontalmente l’edificio in due fasce, quali il basamento e l’intero elevato.

Stato:
Eseguito

Data:
2009 – 2018

Indirizzo:
via Maggiore La Notte – via Corte Preziosa, Bisceglie (BA)

Programma:
Centro direzionale commerciale, tre livelli, area parcheggio al livello interrato, 57 unità direzionali, 3 aree commerciali, 1 galleria commerciale

Superficie lotto di intervento:
2.470,88 mq

Superficie coperta di progetto:
1.550,55 mq

Altezza massima:
10,63 m

Volume di progetto:
9.854,34 mc